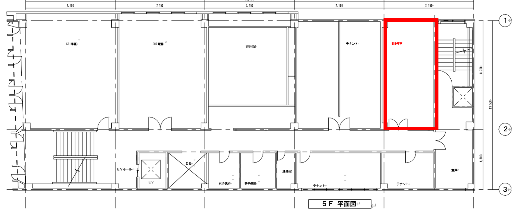
船橋商工会議所会館5階505号室テナント募集
2026-2-27
★駅近!事務所仕様
★JR船橋駅徒歩7分
★専有面積:10.79坪
★夜間閉館(21:00~9:00)
※図面と現況が異なる場合は現況を優先させて頂きます。※火災保険要加入。
| 階数 | 面積 | 月額賃貸料
(坪単価・税別) |
共益費
(坪単価・税別) |
ごみ処理料
(税別) |
水道光熱費 |
| 5階505号室 | 10.79坪 | 15,000円 | 2,000円 | 1,000円 | 実費 |
船橋商工会議所会館概要
△所在地:船橋市本町1-10-10
△建物:鉄筋コンクリート造陸屋根地下1階付8階建
△築年月:昭和42年9月築
△用途地域:商業地域
△設備:電気・都市ガス・水道・エアコン・警備システム
△引渡:相談
△エレベーター:1基
△日・祝日休館
△保証金:月額賃貸借料の6か月分
△契約期間:5年間(定期事業用賃貸借契約)
△再契約料:新賃料の1ヶ月分
△火災保険(借家人賠償特約付):要加入




























